Dömsöd, Nyárfa sétány 3761/5
Vissza

Projekt 07

Dömsöd, Nyárfa sétány 3761/5

Építés alatt Befejezve Üres Eladva

Helyszín

Dömsöd,

Nyárfa sétány 3761/5 hrsz.

Telek mérete

570 m2

Építés éve

2024

Irányár

Ikerház részenként 99M Ft

Eladó ikerházak Dömsödön a Nyárfa sétányon, 3761/5 helyrajzi számon. Az ikerházak jelenleg félkész állapotban vannak. A fotókon látható az aktuális állapotuk, a látványtervek mutatják az elkészült állapotot! Kulcsrakész állapotban 99 millió forint / Ikerház rész! 

Alaprajzok

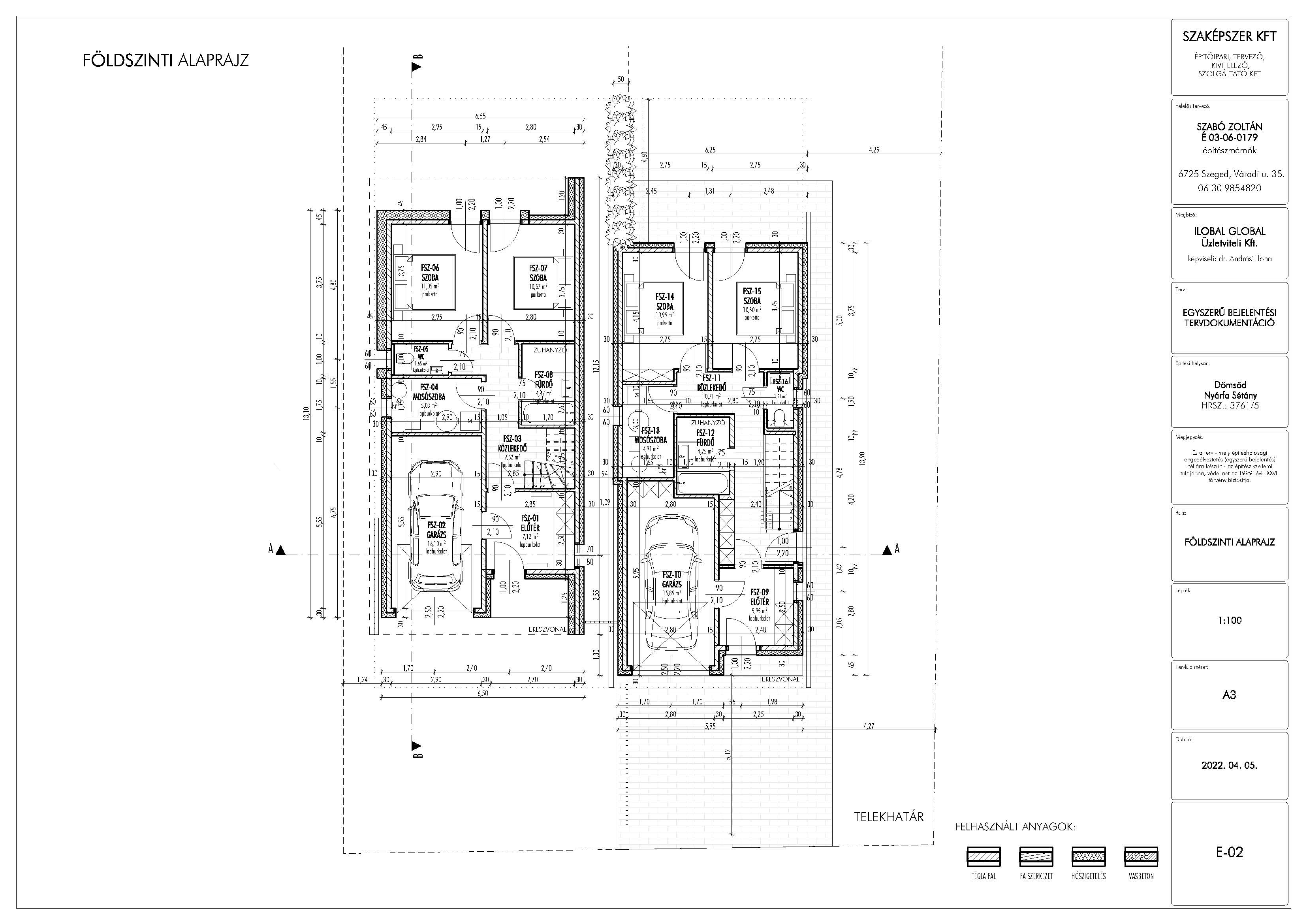
Földszint

Házanként egy állásos garázshely, 2db hálószoba, fürdő és előtér. 

Földszint
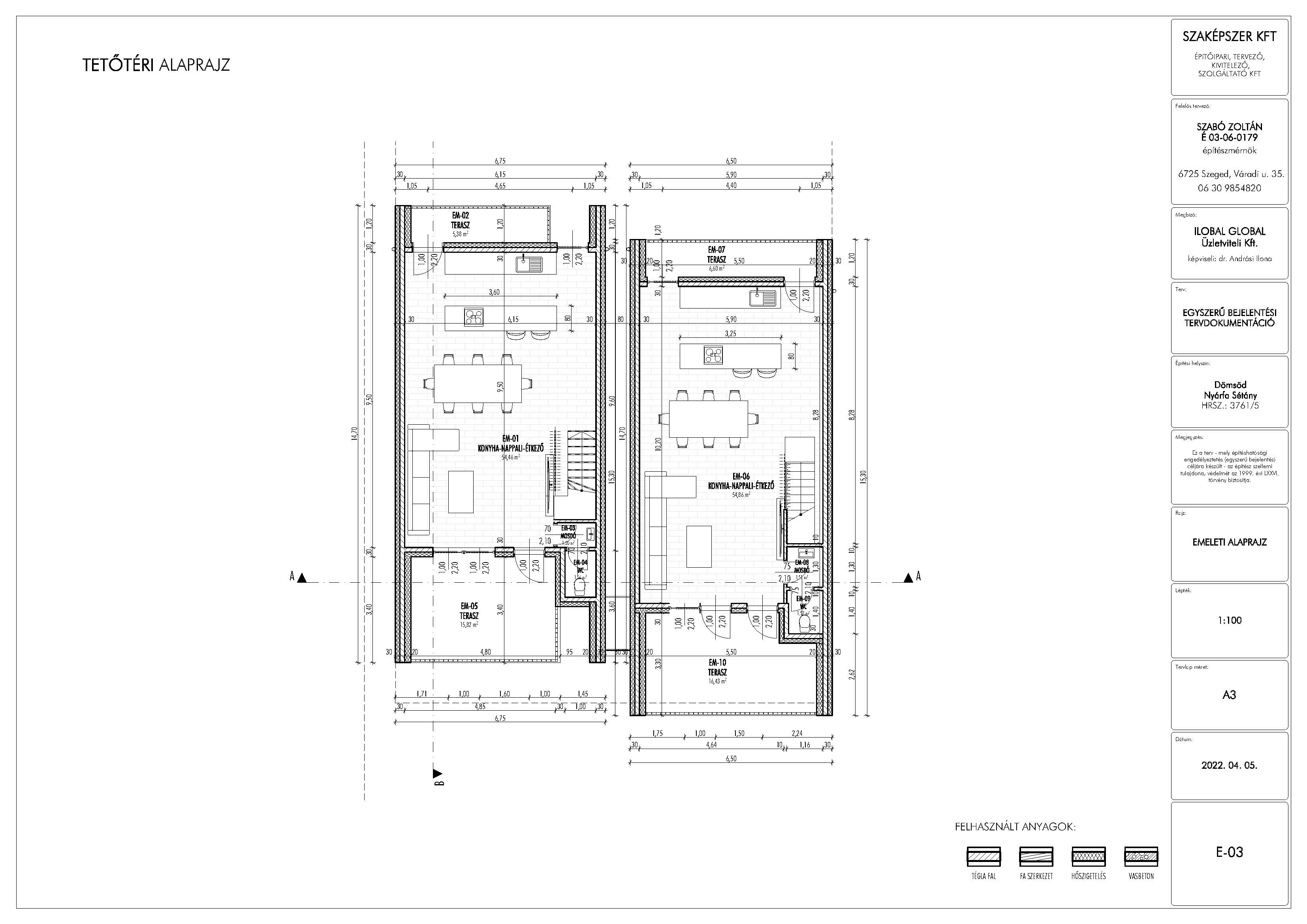
Tetőtér

Tetőtér

Házanként első és hátsó terasz, nappaliból nyíló mosdó, amerikai konyhás nappali étkezővel. 

Kapcsolat

Jellemzők

Parkolás

Egyállásos garázshely

Fűtés, hűtés

Levegő-víz hőszivattyús rendszer, padló és mennyezet fűtés / hűtés

Védelmi felszereltség

Riasztó, kamerás kaputelefon

Egyéb tulajdonságok

Prémium minőségű nyílászárók és szaniterek, elektromos redőnyök

Szigetelés

EPS Hőszigetelés 20cm

Kapcsolat

Látványtervek

Jelenleg az ikerházak szerkezetkész állapotban vannak, ahogy a képeken is látható. A jelenlegi állapotában is, de kulcsra kész állapotban is megvásárolható! 

Teljes ház

Kerámiaház

Ennek a háznak az építéséhez nagyméretű, keramzit betonból készült falelemeket használunk. Ez az építési rendszer leegyszerűsíti a folyamatokat, és akár 50%-kal gyorsabb kivitelezést tesz lehetővé a hagyományos módszerekkel szemben.

A keramzit rendkívül jó építőanyag számos kedvező műszaki tulajdonságának köszönhetően. Könnyű, könnyen szállítható, és jól ellenáll a nedvességnek, savaknak és rothadó folyamatoknak. Fagyálló, nem éghető, tartós és meleg, emellett teljesen ellenáll az élő kártevőknek. Nem nyeli el a nedvességet, és kiváló páraáteresztő képességgel rendelkezik. A legnagyobb rögök esetében a mérések szerint az impregnáltsága 21%, de ez csak a külső bevonatra vonatkozik. A keramzit tökéletesen ellenáll a hő hatásának, és nem bocsát ki semmilyen vegyi anyagot vagy gázt. Az élő kártevők, például rágcsálók és rovarok kifejezetten elkerülik. Továbbá ellenáll a penésznek és a gombáknak is.

Környezettudatos

Környezettudatos

Természetes falazatok, minimális hulladék és tökéletes hőszigetelési mutatók.

Nagyobb élettér

Nagyobb élettér

A hagyományos, kiselemes építési technológiákkal összehasonlítva a teherbíró falak vastagsága csökken, így akár 5-8%-kal nőhet a hasznos alapterület.

Masszív szerkezet

Masszív szerkezet

A falak tömörek, nagy szilárdságúak, jó hőmegtartó képességüknek köszönhetően javul a komfortérzet télen és nyáron egyaránt.

Kapcsolat

Kapcsolat

Vegye fel velünk a kapcsolatot az alábbi elérhetőségek valamelyikén, vagy írjon nekünk a kapcsolati űrlapon keresztül!

Telefon: +36 30 648 6311

E-mail: info@andrasikft.hu