Dömsöd, Haladás utca
Vissza

Projekt 05

Dömsöd, Haladás utca

Építés alatt Befejezve Üres Eladva

Helyszín

Dömsöd,

Haladás utca

Telek mérete

768 m2

Építés éve

Építés előtt

Irányár

Nettó 21,3 M Ft

3D tervek megtekintése

Eladó Dömsödön, az 1534 hrsz. szám alatt található, üres telek, amihez van bejelentett tervdokumentáció.
A tervdokumentáció + 3 millió forint! A közművek a telek előtt vannak. Megegyezés szerint vállaljuk a lakóépületek kivitelezését is! 

 

 

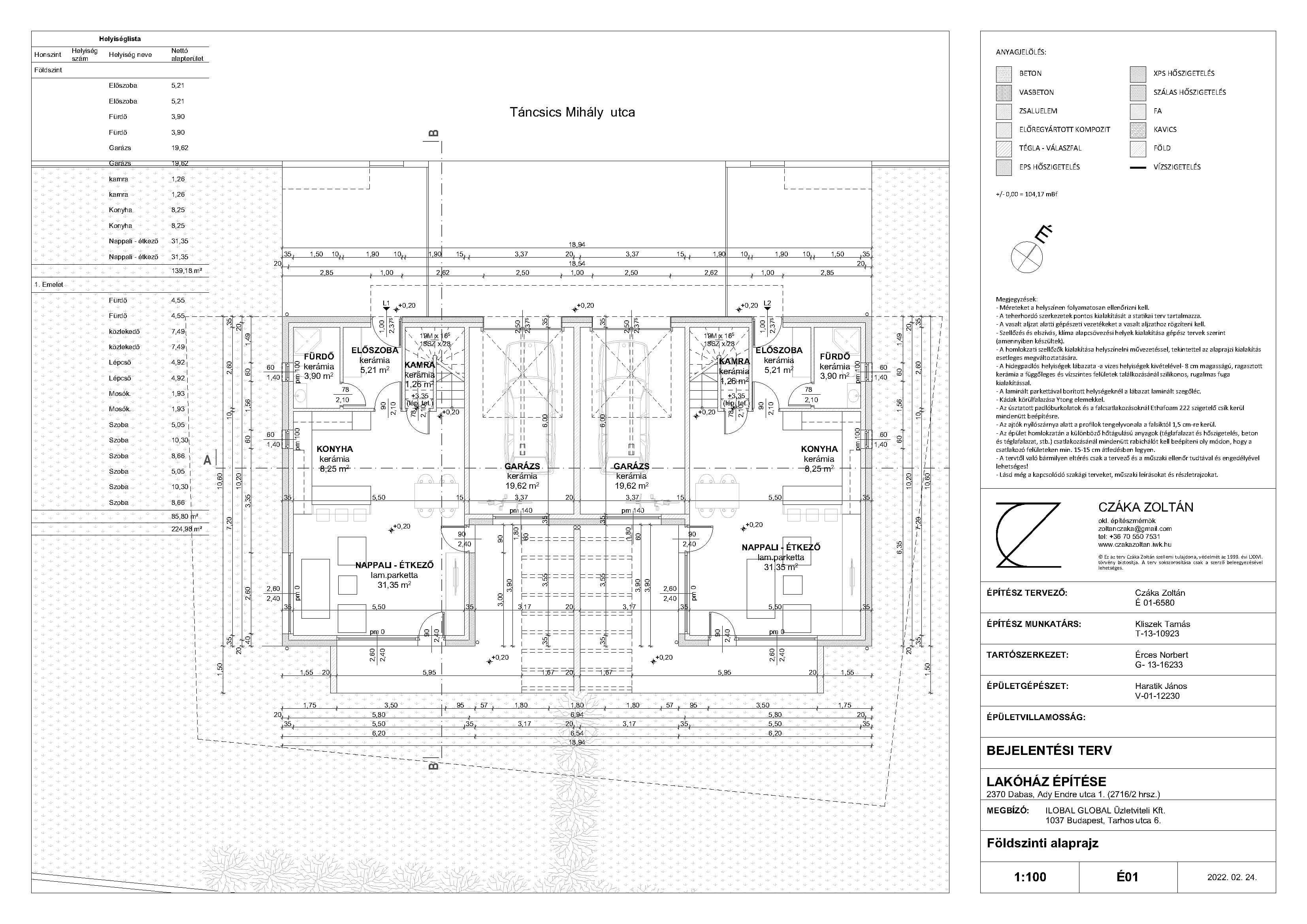
Alaprajzok

Földszint

1. lakóépület

Előszoba (4,63 m2), Előszoba (4,63 m2), Fürdőszoba (3,80 m2), Kamra (1,26 m2), Nappali-Étkező (35,91 m2), Konyha (12,13 m2), Garázs (18.00 m2).

Földszinti nettó alapterület összesen: 75,73 m2.

Nettó alapterület összesen: 136,16 m2.

 

2. lakóépület

Előszoba (4,63 m2), Előszoba (4,63 m2), Fürdőszoba (3,80 m2), Kamra (1,26 m2), Nappali-Étkező (35,91 m2), Konyha (12,13 m2), Garázs (18.00 m2).

Földszinti nettó alapterület összesen: 75,73 m2.

Nettó alapterület összesen: 136,16 m2.

Földszint
Emelet

Emelet

1. lakóépület

Lépcső (5,13 m2), Közlekedő (4,35 m2), Fürdőszoba (7,25 m2), Gardróbszoba (3,80 nm), 1. Hálószoba (11,39 m2), 2. Hálószoba (12.55 m2), 3. Hálószoba (15,96 m2).

Emelet nettó alapterülete összesen: 63,43 m2.

Nettó alapterület összesen: 136,16 m2.

 

2. lakóépület

Lépcső (5,13 m2), Közlekedő (4,35 m2), Fürdőszoba (7,25 m2), Gardróbszoba (3,80 m2), 1. Hálószoba (11,39 m2), 2. Hálószoba (12.55 m2), 3. Hálószoba (15,96 m2).

Emeleti nettó alapterülete összesen: 63,43 m2.

Nettó alapterület összesen: 136,16 m2.

Kapcsolat

Látványtervek

A  kétlakásos lakóépület saroktelken kerül elhelyezésre. A ház körül nagy teraszok kerülnek kialakításra. Kertjébe igény szerint ki akár úszómedencével vagy jacuzzi is beépíthető, 
A nappali nagy üvegén keresztül, akár télen is élvezhetjük a kert közelségét. 

 

Teljes ház
Teljes ház
Teljes ház
Teljes ház
Teljes ház
Teljes ház
Teljes ház
Belső terek

Az ingatlan prémium minőségű, gépesített konyhabútorral kerül átadásra. Lehetőség van kiválasztani mind a bútorlapokat, mind a gépeket a burkolatokkal együtt. 

 

Kerámiaház

Ennek a háznak az építéséhez nagyméretű, keramzit betonból készült falelemeket használunk. Ez az építési rendszer leegyszerűsíti a folyamatokat, és akár 50%-kal gyorsabb kivitelezést tesz lehetővé a hagyományos módszerekkel szemben.

A keramzit rendkívül jó építőanyag számos kedvező műszaki tulajdonságának köszönhetően. Könnyű, könnyen szállítható, és jól ellenáll a nedvességnek, savaknak és rothadó folyamatoknak. Fagyálló, nem éghető, tartós és meleg, emellett teljesen ellenáll az élő kártevőknek. Nem nyeli el a nedvességet, és kiváló páraáteresztő képességgel rendelkezik. A legnagyobb rögök esetében a mérések szerint az impregnáltsága 21%, de ez csak a külső bevonatra vonatkozik. A keramzit tökéletesen ellenáll a hő hatásának, és nem bocsát ki semmilyen vegyi anyagot vagy gázt. Az élő kártevők, például rágcsálók és rovarok kifejezetten elkerülik. Továbbá ellenáll a penésznek és a gombáknak is.

Környezettudatos

Környezettudatos

Természetes falazatok, minimális hulladék és tökéletes hőszigetelési mutatók.

Nagyobb élettér

Nagyobb élettér

A hagyományos, kiselemes építési technológiákkal összehasonlítva a teherbíró falak vastagsága csökken, így akár 5-8%-kal nőhet a hasznos alapterület.

Masszív szerkezet

Masszív szerkezet

A falak tömörek, nagy szilárdságúak, jó hőmegtartó képességüknek köszönhetően javul a komfortérzet télen és nyáron egyaránt.

Kapcsolat

Kapcsolat

Vegye fel velünk a kapcsolatot az alábbi elérhetőségek valamelyikén, vagy írjon nekünk a kapcsolati űrlapon keresztül!

Telefon: +36 30 648 6311

E-mail: info@andrasikft.hu