Pilisszentiván, Szabadság út
Vissza

Projekt 04

Pilisszentiván, Szabadság út

Építés alatt Befejezve Üres Eladva

Helyszín

Pilisszentiván,

Szabadság út

Telek mérete

1429 m2

Épület alapterülete

Nettó: 217 m2

Bruttó: 240 m2

Építés éve

2024

Irányár

120M Ft

Eladó Pilisszentivánon egy 1429 m2 méretű telken lévő 3 szintes, teljeskörűen felújított családi ház.
A ház riasztóberendezéssel és kamerás kaputelefonnal felszerelt. A megfelelő klímáról mennyezet fűtés-hűtés és padlófűtés gondoskodik. 

Videó
Lejátszás

Alaprajzok

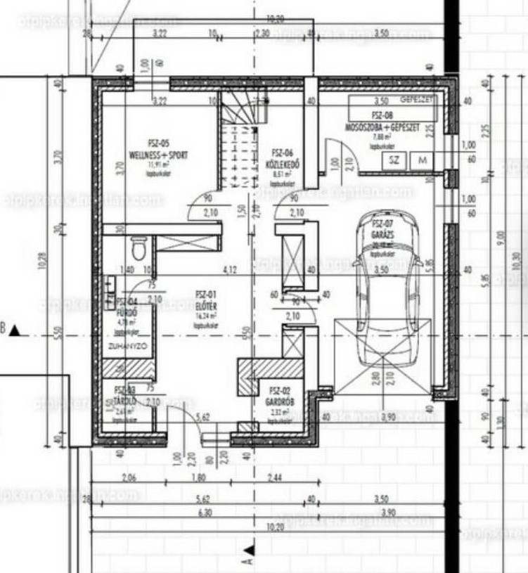
Földszint

A földszinti (garázs szint) alaprajza, amin látható a bejárat, előtér, garázs, sportszoba, mosószoba+gépészet, gardrób és egy tároló.

Földszint
Emelet

Emelet

Az első emeleti alaprajz, amin látható a konyha+étkező, nappali, közlekedő, fürdőszoba, hálószoba és loggia.

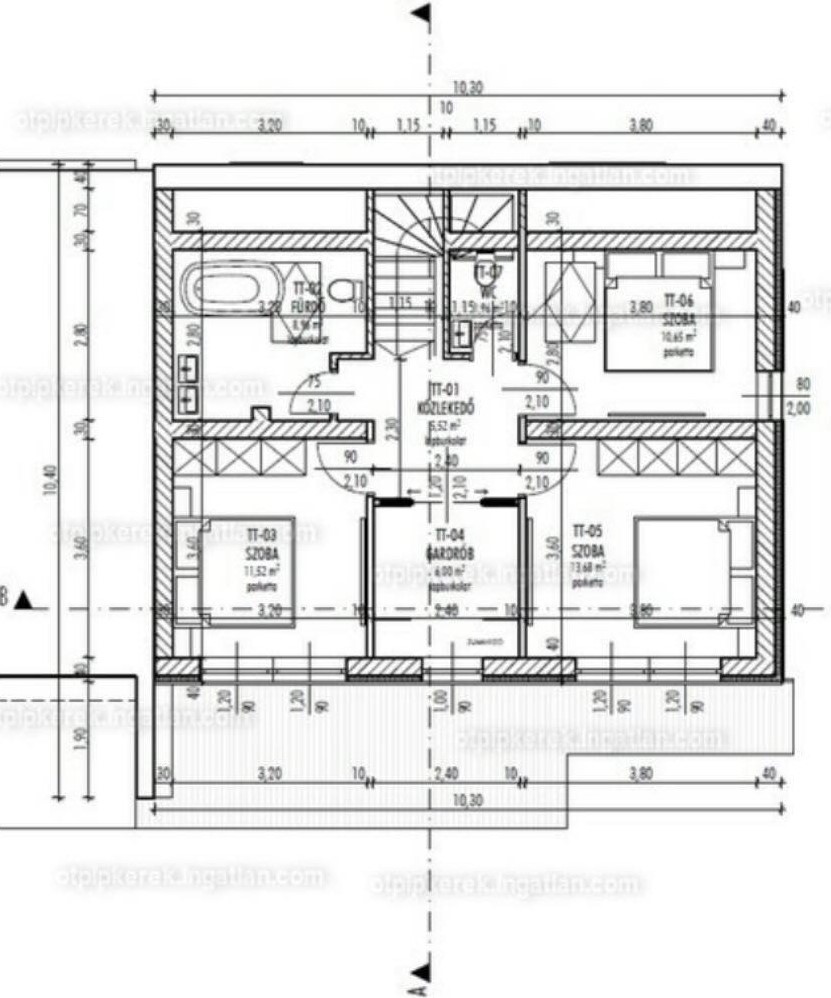
Tetőtér

A tetőtéri (2. emeleti) alaprajz, amin látható 3 darab hálószoba, fürdőszoba, gardrób és a közlekedő.

Tetőtér
Kapcsolat

Jellemzők

Fűtés, hűtés

Hőszivattyú, padlófűtés, mennyezeti hűtés-fűtés

Védelmi felszereltség

Riasztó, kamera, monitoros kaputelefon

Helységek listája

Nappali (20,5 m2), Közlekedő (5,9 m2), Fürdőszoba (6,5 m2), Amerikai konyhás nappali (41,5 m2), Loggia (11,4 m2), Fürdőszoba (9 m2), Közlekedő (5,5 m2), Szoba (10,7 m2), Szoba (13,7 m2), Gardrób (6 m2), Szoba (11,5 m2), Konditerem (11,9 m2), Közlekedő (8,5 m2), Mosókonyha (7,9 m2), Garázs (21 m2), Előszoba (16,2 m2), Fürdőszoba (4,8 m2), Tároló (2,6 m2)

Parkoló helyek

Garázs (1 személygépjárműnek), + 3 kiépített udvari parkolóhely

Szigetelés

A ház szigetelését 15cm vastagon fedték, + Bramac tetőcserepek kőzetgyapot szigeteléssel

Kapcsolat

Látványtervek

MAGAS MINŐSÉG

Gondos kivitelező munkája által újragondolt, a legmagasabb minőségű szakipari termékek kiválasztásával kivitelezett önálló családi ház. Az ingatlan egy 1.429 m2-es telken fekszik, ahol az épület a telek közepén került megépítésre, utcafronton és a ház mögött is hatalmas kert élvezhető.
A részben térkövezett kertbe elektromos kapuval jutunk be. Lehetőség van több gépkocsi parkolására is, illetve az épületen belül helyezkedik el el egy elektromos kapuval felszerelt garázs. 

 

Teljes ház
Teljes ház
Teljes ház
Teljes ház
Teljes ház
Belső terek

Ideális elrendezés, magas felszereltség

Szintén az alsó szinten még található egy fürdő, mosókonyha, és fitness terem is, illetve itt lett a MIDEA hőszivattyú is elhelyezve. (H tarifa)
Emeleti szinten nyert teret egy hálószoba, fürdőszoba, loggiás tágas nappali, és a prémium minőségű gépesített konyha.
Tetőtéri szinten 3 hálószoba, és fürdőszoba van, gardrób társaságában.
Fűtését tekintve padlófűtés, és mennyezeti hűtés-fűtéssel rendelkezik.
A ház szigetelését 15 cm vastagon fedték, tetőcserepe Bramac + kőzetgyapot szigetelés.
Extraként a fürdőszobái szekrényekkel van felszerelve, melegét a padlófűtés biztosítja.
Nyílászáróknál az EMA termékét választották, mely elektromos redőnnyel van szerelve.
Riasztó, és kamerás kaputelefon.

Kapcsolat

Vegye fel velünk a kapcsolatot az alábbi elérhetőségek valamelyikén, vagy írjon nekünk a kapcsolati űrlapon keresztül!

Telefon: +36 30 648 6311

E-mail: info@andrasikft.hu