Budapest, Tarhos utca
Vissza

Projekt 08

Budapest, Tarhos utca

Építés alatt Befejezve Üres Eladva

Helyszín

Budapest,

III. kerület,

Tarhos utca

Telek mérete

821 m2

Építés éve

2024

Irányár

455 M Ft

Alaprajzok

Földszint

Földszint
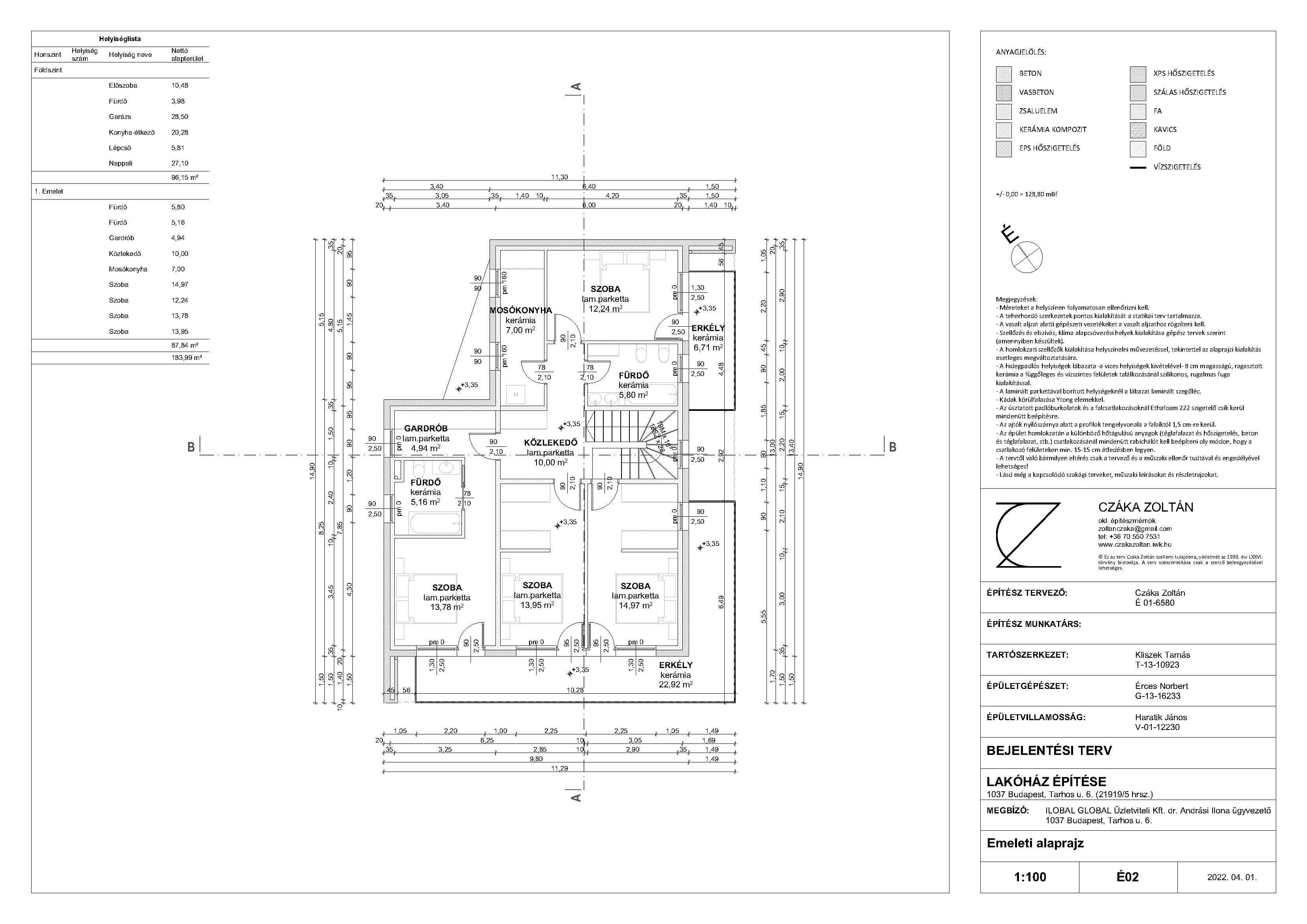
Emelet

Emelet

Kapcsolat
Teljes ház
Teljes ház
Teljes ház
Teljes ház

Kerámiaház

Ennek a háznak az építéséhez nagyméretű, keramzit betonból készült falelemeket használunk. Ez az építési rendszer leegyszerűsíti a folyamatokat, és akár 50%-kal gyorsabb kivitelezést tesz lehetővé a hagyományos módszerekkel szemben.

A keramzit rendkívül jó építőanyag számos kedvező műszaki tulajdonságának köszönhetően. Könnyű, könnyen szállítható, és jól ellenáll a nedvességnek, savaknak és rothadó folyamatoknak. Fagyálló, nem éghető, tartós és meleg, emellett teljesen ellenáll az élő kártevőknek. Nem nyeli el a nedvességet, és kiváló páraáteresztő képességgel rendelkezik. A legnagyobb rögök esetében a mérések szerint az impregnáltsága 21%, de ez csak a külső bevonatra vonatkozik. A keramzit tökéletesen ellenáll a hő hatásának, és nem bocsát ki semmilyen vegyi anyagot vagy gázt. Az élő kártevők, például rágcsálók és rovarok kifejezetten elkerülik. Továbbá ellenáll a penésznek és a gombáknak is.

Környezettudatos

Környezettudatos

Természetes falazatok, minimális hulladék és tökéletes hőszigetelési mutatók.

Nagyobb élettér

Nagyobb élettér

A hagyományos, kiselemes építési technológiákkal összehasonlítva a teherbíró falak vastagsága csökken, így akár 5-8%-kal nőhet a hasznos alapterület.

Masszív szerkezet

Masszív szerkezet

A falak tömörek, nagy szilárdságúak, jó hőmegtartó képességüknek köszönhetően javul a komfortérzet télen és nyáron egyaránt.

Kapcsolat

Kapcsolat

Vegye fel velünk a kapcsolatot az alábbi elérhetőségek valamelyikén, vagy írjon nekünk a kapcsolati űrlapon keresztül!

Telefon: +36 30 648 6311

E-mail: info@andrasikft.hu