Dömsöd, Ráckevei út
Vissza

Projekt 01

Dömsöd, Ráckevei út

Építés alatt Befejezve Üres Eladva

Helyszín

Dömsöd,

Ráckevei út (3746 hrsz)

Telek mérete

813 m2

Építés éve

Építés előtt

Irányár

Nettó 17,9M Ft

3D tervek megtekintése

Eladó Dömsödön, a Ráckevei út 61. szám alatt található üres telek. 
A telekhez tartozik bejelentett tervdokumentáció is! A tervdokumentáció + 3 millió Ft! 
Megegyezés szerint vállaljuk a lakóépületek kivitelezését is! 

 

 

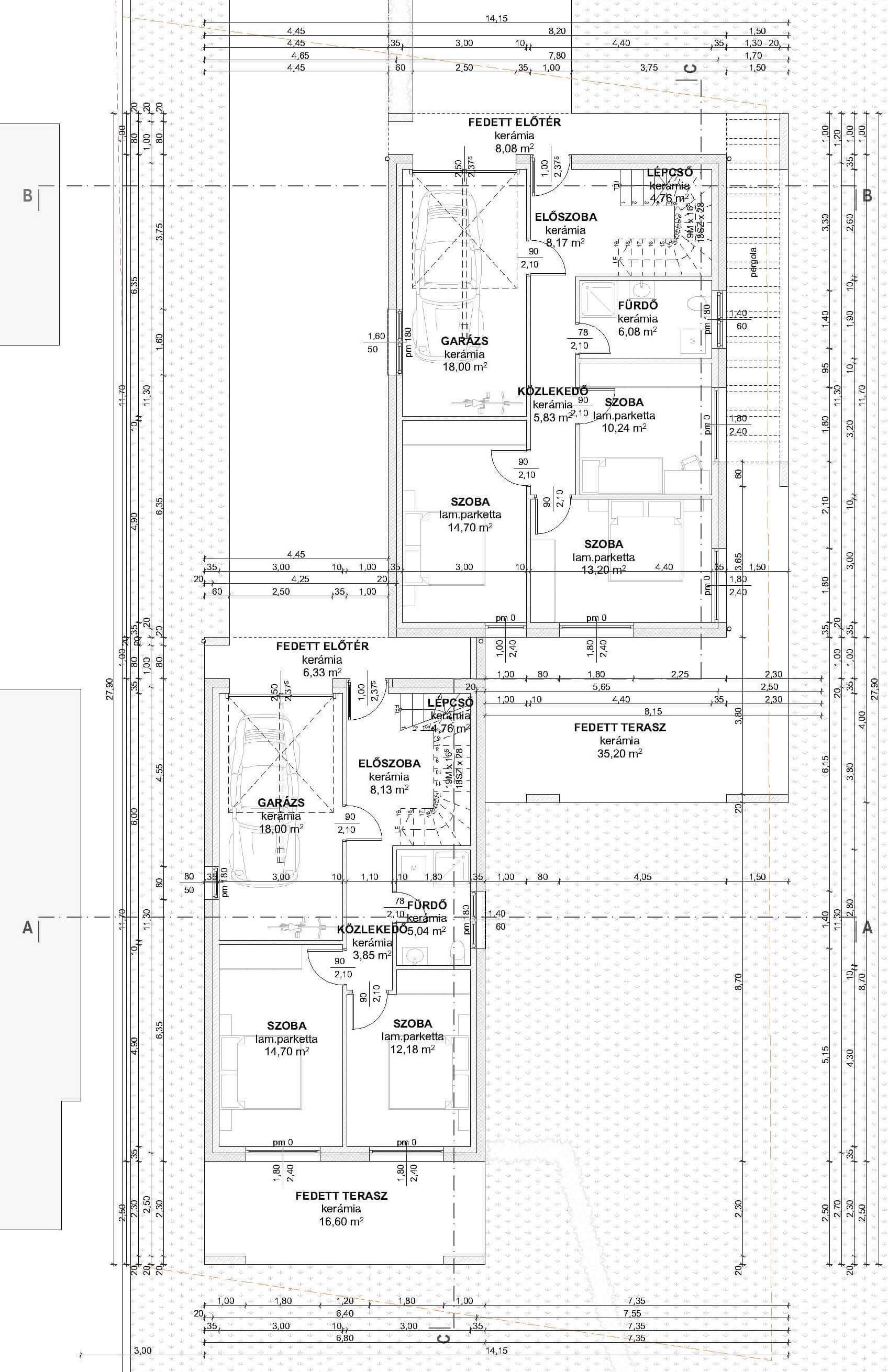
Alaprajzok

Földszint

1. lakóépület

Előszoba (8,17 m2), Lépcső (4,76 m2), Fürdőszoba (6,08 m2), Közlekedő (5,83 m2), 1. Hálószoba (10,24 m2), 2. Hálószoba (13,20 m2), 3. Hálószoba (14,70 m2), Garázs (18.00 m2).

A földszinti nettó alapterület összesen: 80,98 m2.

Fedett előtér (8,08 m2), fedett terasz (35,20 m2).

Nettó alapterület összesen: 156,34 m2 +  fedett előtér és terasz 43,28 m2.

 

2. lakóépület

Előszoba (8,13 m2), Lépcső (4,76 m2), Fürdőszoba (5,04 m2), Közlekedő (3,85 m2), 1. Hálószoba (12,18 m2), 2. Hálószoba (14,70 m2), Garázs (18.00 m2).

A földszinti nettó alapterület összesen: 66,66 m2

Fedett előtér (6,33 m2), fedett terasz (16,60 m2).

Nettó alapterület összesen: 125,96 m2 +  fedett előtér és terasz 22,39 m2.

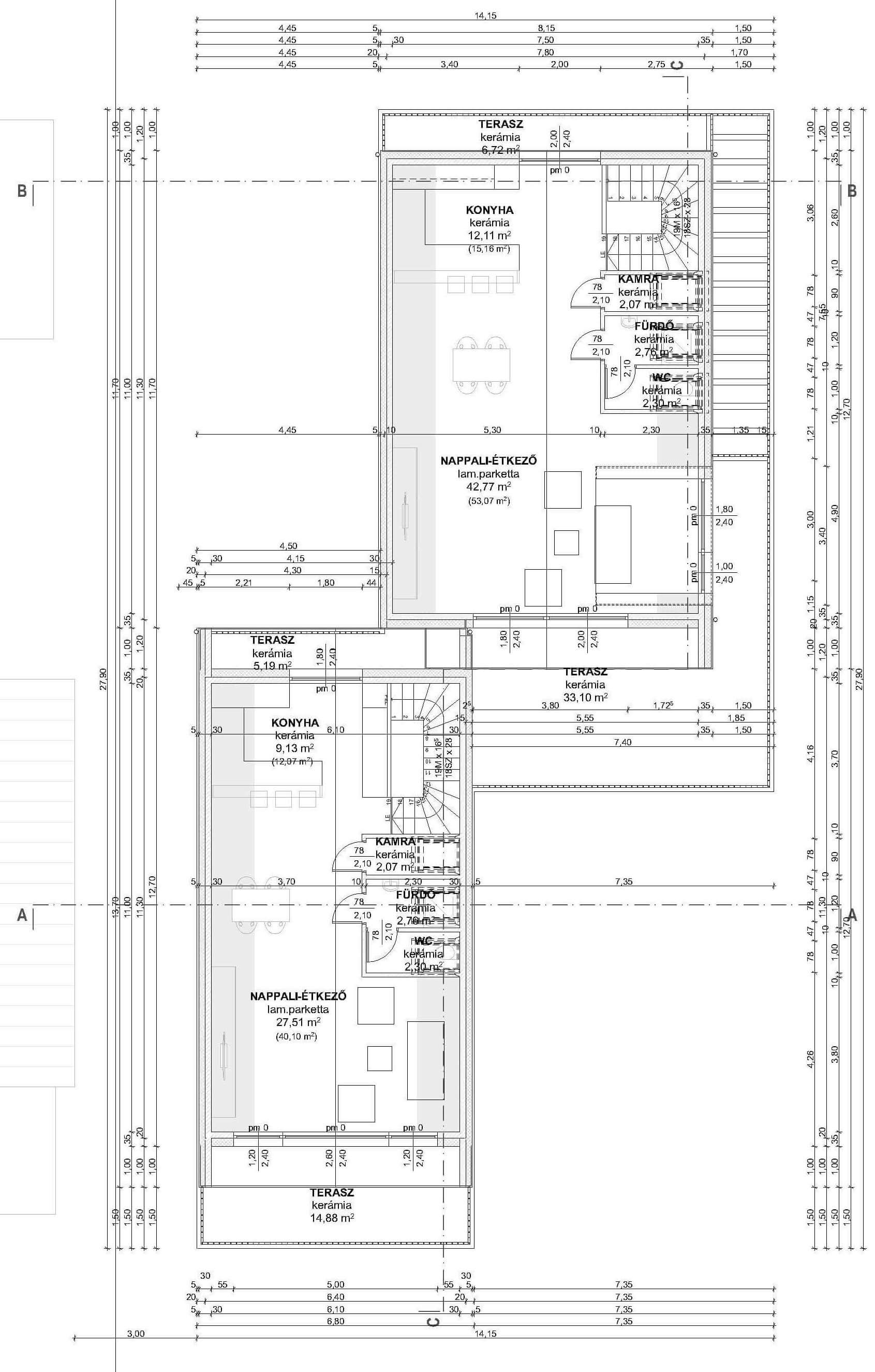
Földszint
Emelet

Emelet

1. lakóépület

Fürdőszoba (2,76 m2), WC (2,30 m2), Nappali-Étkező (53,07 m2), Konyha (12,07 m2)

Kamra (2,07 m2).

Emeleti nettó alapterülete összesen: 75,36 m2.

Nettó alapterület összesen: 156,34 m2 +  fedett előtér és terasz 43,28 m2.

 

2. lakóépület

Fürdőszoba (2,76 m2), WC (2,30 m2), Nappali-Étkező (40,10 m2), Konyha (12,07 m2)

Kamra (2,07 m2).

Emeleti nettó alapterülete összesen: 59,30 m2.

Fedett előtér (6,33 m2), fedett terasz (16,60 m2).

Nettó alapterület összesen: 125,96 m2 +  fedett előtér és terasz 22,39 m2.

Helyszínrajz

A telek mérete: 813m

A helyszínrajzon látható a két lakóépület közti méretbeli különbség. 

Helyszínrajz
Kapcsolat

Jellemzők

1. lakóépület alapterülete összesen

nettó 156,34 nm + fedett előtér és terasz 43,28 nm

2. lakóépület alapterülete összesen

nettó 125,96 nm + fedett előtér és terasz 22,39 nm

Kapcsolat

Látványtervek

Modern, élethű tervek

A látványterveken és a 3D modellen látható, milyen lenne kivitelezve az üres telekhez eladó tervdokumentáció! 

 

Teljes ház
Teljes ház
Teljes ház
Belső terek

Módosítható külső 

A ház és kerítés színe csak példa jellegű.
Az új tulajdonos a kedve szerint tud róla dönteni a későbbiekben. 

Kerámiaház

Ennek a háznak az építéséhez nagyméretű, keramzit betonból készült falelemeket használunk. Ez az építési rendszer leegyszerűsíti a folyamatokat, és akár 50%-kal gyorsabb kivitelezést tesz lehetővé a hagyományos módszerekkel szemben.

A keramzit rendkívül jó építőanyag számos kedvező műszaki tulajdonságának köszönhetően. Könnyű, könnyen szállítható, és jól ellenáll a nedvességnek, savaknak és rothadó folyamatoknak. Fagyálló, nem éghető, tartós és meleg, emellett teljesen ellenáll az élő kártevőknek. Nem nyeli el a nedvességet, és kiváló páraáteresztő képességgel rendelkezik. A legnagyobb rögök esetében a mérések szerint az impregnáltsága 21%, de ez csak a külső bevonatra vonatkozik. A keramzit tökéletesen ellenáll a hő hatásának, és nem bocsát ki semmilyen vegyi anyagot vagy gázt. Az élő kártevők, például rágcsálók és rovarok kifejezetten elkerülik. Továbbá ellenáll a penésznek és a gombáknak is.

Környezettudatos

Környezettudatos

Természetes falazatok, minimális hulladék és tökéletes hőszigetelési mutatók.

Nagyobb élettér

Nagyobb élettér

A hagyományos, kiselemes építési technológiákkal összehasonlítva a teherbíró falak vastagsága csökken, így akár 5-8%-kal nőhet a hasznos alapterület.

Masszív szerkezet

Masszív szerkezet

A falak tömörek, nagy szilárdságúak, jó hőmegtartó képességüknek köszönhetően javul a komfortérzet télen és nyáron egyaránt.

Kapcsolat

Kapcsolat

Vegye fel velünk a kapcsolatot az alábbi elérhetőségek valamelyikén, vagy írjon nekünk a kapcsolati űrlapon keresztül!

Telefon: +36 30 648 6311

E-mail: info@andrasikft.hu