Dabas, Ady Endre utca
Vissza

Projekt 02

Dabas, Ady Endre utca

Építés alatt Befejezve Üres Eladva

Helyszín

Dabas,

Ady Endre utca

Telek mérete

720 m2

Épület alapterülete

Nettó: 110 m2

Bruttó: 131 m2

Építés éve

2024

Irányár

119,5M Ft

3D tervek megtekintése

Eladó Dabason Gyón közkedvelt részén, egy kész, magasan felszerelt, minőségi alapanyagokból kivitelezett, kerámia technológiás ikerház egyik fele (a másik fél elkelt). A kétszintes ingatlan 132 m2, 4 szoba, melyeket csak az egyállásos garázs érinti. A teleknek 351 m2 a bruttó területe. 

Videó
Lejátszás

Alaprajzok

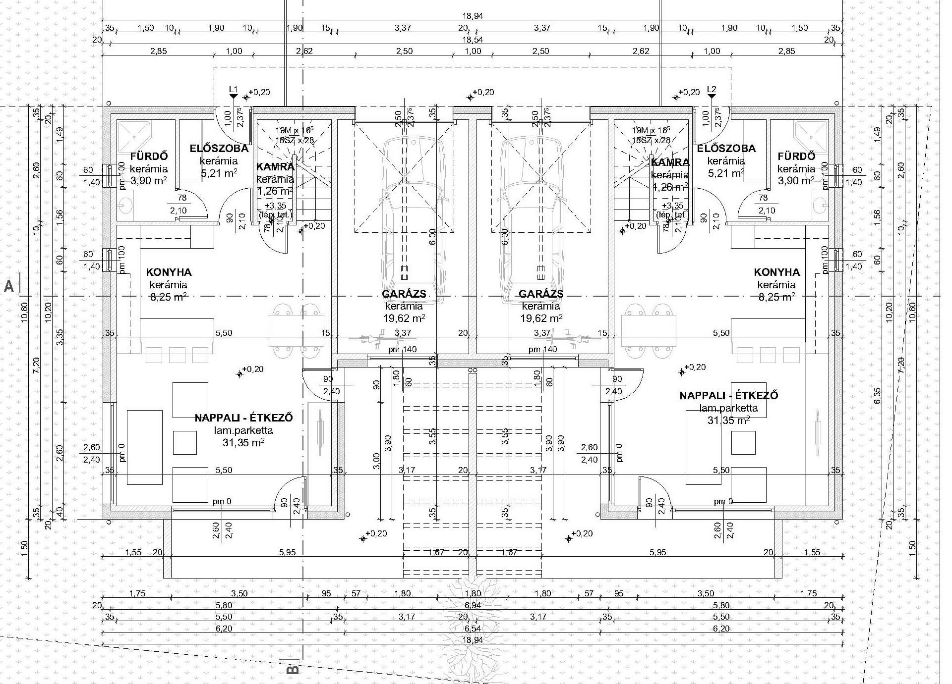
Földszint

1. lakóépület

Előszoba (5,21 m2),  Fürdőszoba (3,90 m2), Nappali-Étkező (31,35 m2), Kamra (1,26 m2), Konyha (8,25 m2), Garázs (19,62 m2.

Földszinti alapterület összesen: 69,59 m2.

 

2. lakóépület

Előszoba (5,21 m2), Fürdőszoba (3,90 m2), Nappali-Étkező (31,35 m2), Kamra (1,26 m2), Konyha (8,25 m2), Garázs (19,62 m2).

Földszinti alapterület összesen: 69,59 m2.

Földszint
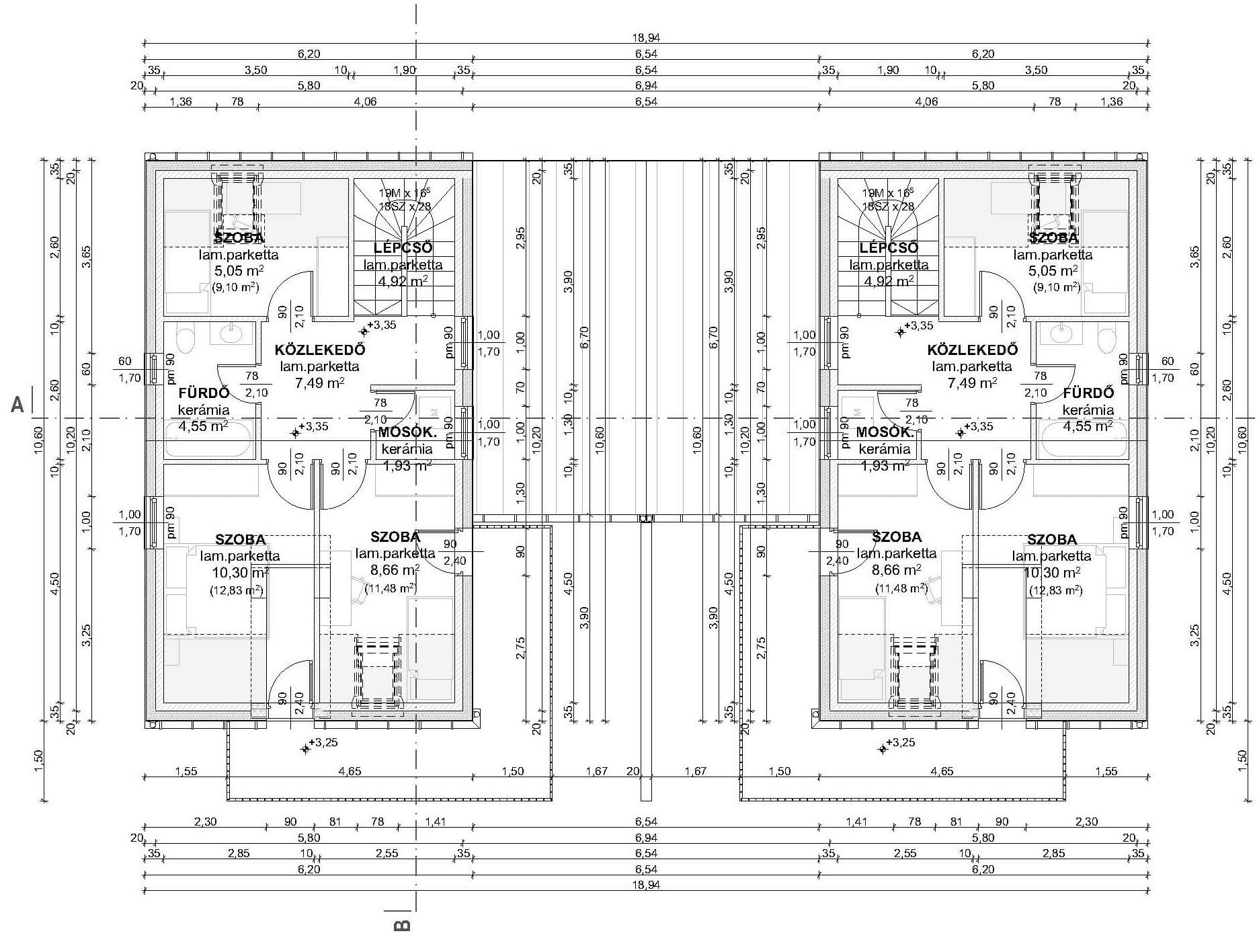
Emelet

Emelet

1. lakóépület

Közlekedő (7,49 m2), Lépcső (4,92 m2), Fürdőszoba (4,55 m2), Gardróbszoba (1,93 m2), 1. Hálószoba (12,83 m2), 2. Hálószoba (11,48 m2), 3. Hálószoba (9,10 m2).

Emelet alapterülete összesen: 52,30 m2.

 

2. lakóépület

Közlekedő (7,49 m2), Lépcső (4,92 m2), Fürdőszoba (4,55 m2), Gardróbszoba (1,93 m2), 1. Hálószoba (12,83 m2), 2. Hálószoba (11,48 m2), 3. Hálószoba (9,10 m2).

Emelet alapterülete összesen: 52,30 m2.

Alapterület összesen: 121,89 m2.

A két lakóépület együttes alapterülete összesen: 243,78 m2.

Kapcsolat

Jellemzők

Fűtés, hűtés

Levegő-víz hőszivattyús, padló fűtés és mennyezet hűtés

Védelmi felszereltség

Monitoros riasztó és kaputelefon.

Telek megosztása

A telek megosztását hivatalosan ügyvéd általi megosztási szerződéssel osztják meg!

Gépesített konyha

Sütő, főzőlap, mikró, mosogatógép, hütő

Egyéb tulajdonságok

CPL fóliás beltéri ajtók, elektromos redőnyök

Kapcsolat

Látványtervek

Természetközeli modern környezet

A ház körül nagy teraszok kaptak elhelyezést, kertjébe igény szerint ki lehet alakítani még a garázson kívül gépkocsibeállót.
A nappali nagy üvegén keresztül akár télen is élvezhetjük a kert közelségét. 

Teljes ház
Teljes ház
Teljes ház
Belső terek

MODERN MEGOLDÁSOK A NYUGALOM SZIGETÉN

Az ingatlan gépesített konyhabútorral felszerelt.
Beépítésre került mikró, főző- és  sütőlap,hűtő, mosó- és mosogatógép.
A földszinti fürdőszobában tusoló, míg az emeleti fürdőszobában félszabadon álló kád került kialakításra. 

Kerámiaház

Ennek a háznak az építéséhez nagyméretű, keramzit betonból készült falelemeket használunk. Ez az építési rendszer leegyszerűsíti a folyamatokat, és akár 50%-kal gyorsabb kivitelezést tesz lehetővé a hagyományos módszerekkel szemben.

A keramzit rendkívül jó építőanyag számos kedvező műszaki tulajdonságának köszönhetően. Könnyű, könnyen szállítható, és jól ellenáll a nedvességnek, savaknak és rothadó folyamatoknak. Fagyálló, nem éghető, tartós és meleg, emellett teljesen ellenáll az élő kártevőknek. Nem nyeli el a nedvességet, és kiváló páraáteresztő képességgel rendelkezik. A legnagyobb rögök esetében a mérések szerint az impregnáltsága 21%, de ez csak a külső bevonatra vonatkozik. A keramzit tökéletesen ellenáll a hő hatásának, és nem bocsát ki semmilyen vegyi anyagot vagy gázt. Az élő kártevők, például rágcsálók és rovarok kifejezetten elkerülik. Továbbá ellenáll a penésznek és a gombáknak is.

Környezettudatos

Környezettudatos

Természetes falazatok, minimális hulladék és tökéletes hőszigetelési mutatók.

Nagyobb élettér

Nagyobb élettér

A hagyományos, kiselemes építési technológiákkal összehasonlítva a teherbíró falak vastagsága csökken, így akár 5-8%-kal nőhet a hasznos alapterület.

Masszív szerkezet

Masszív szerkezet

A falak tömörek, nagy szilárdságúak, jó hőmegtartó képességüknek köszönhetően javul a komfortérzet télen és nyáron egyaránt.

Kapcsolat

Kapcsolat

Vegye fel velünk a kapcsolatot az alábbi elérhetőségek valamelyikén, vagy írjon nekünk a kapcsolati űrlapon keresztül!

Telefon: +36 30 648 6311

E-mail: info@andrasikft.hu