Szeged, Világos utca
Vissza

Projekt 03

Szeged, Világos utca

Építés alatt Befejezve Üres Eladva

Helyszín

Szeged,

Világos utca

Telek mérete

602 m2

Építés éve

Folyamatban

Irányár

Lakóépületenként 199,8M Ft

3D tervek megtekintése

Eladó Szeged-Alsóváros egyik legszebb részén - a Szabadság térhez közel - kivitelezés alatt álló, prémium minőségű, kerámia technológiás ikerház mindkét fele. A lakóépületenkénti értékesítési ár 199,8  millió forint kulcsrakész állapotban. A garázs értékesítési ára 29 millió forint. 

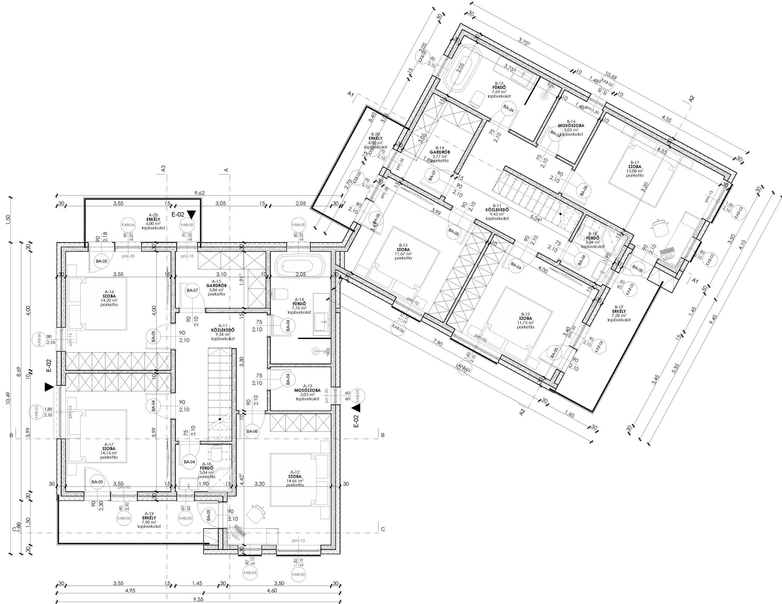
Alaprajzok

Földszint

"A" lakóépület:

Előtér (3,46 m2), Közlekedő (3,15 m2), Lépcsőtér (2,76 m2), Szoba (10,12 m2), Fürdőszoba (4,70 m2), WC (1,12 m2), Nappali (12,54 m2), Étkező (10,00 m2), Konyha (7,80 m2), Garázs (20,32 m2).

Földszinti alapterület összesen: 75,97 m2.

 

„B” lakóépület:

Előtér (3,40 m2), Közlekedő (2,84 m2), Lépcsőtér (2,83 m2), Hálószoba (10,12 m2), Fürdőszoba (4,42 m2), WC (1,12 m2), Nappali (12,52 m2), Étkező (9,66 m2), Konyha (7,80 m2), Garázs (21,43 m2).

Földszinti alapterület összesen: 76,14 m2.

Földszint
Emelet

Emelet

"A" lakóépület:

Közlekedő (9,34 m2), Mosószoba (3,03 m2), 1. Fürdőszoba (7,76 m2), 2. Fürdőszoba (3,04 m2),   Gardróbszoba (5,84 m2), 1. Hálószoba (14,66 m2), 2. Hálószoba (14,20 m2), 3. Hálószoba (14,16 m2).

Emelet alapterülete összesen: 72,03 m2.

Alapterület összesen: 148 m2.

 

"B" lakóépület:

Közlekedő (9,45 m2), Mosószoba (3,05 m2), 1. Fürdőszoba (7,69 m2), 2. Fürdőszoba (3,04 m2), Gardróbszoba (5,77 m2), 1. Hálószoba (13,80 m2), 2. Hálószoba (13,74 m2), 3. Hálószoba (15,08 m2).

Emeleti alapterület összesen: 71,62 m2.

Alapterület összesen: 147,76 m2.

 

A két lakóépület együttes alapterülete összesen: 295,76 m2.

Kapcsolat

Jellemzők

Fűtés, hűtés

Levegő-víz hőszivattyús rendszer, padló fűtés és mennyezet fűtés-hűtés

Védelmi felszereltség

Monitoros riasztó, kamera és kaputelefon

Egyéb tulajdonságok

Prémium minőségű nyílászárók és szaniterek, elektromos redőnyök

Szigetelés

EPS Hőszigetelés 20cm, Terran tetőcserép purhabos szigeteléssel

Parkoló helyek

Garázs (1 személygépjárműnek), + 1db kiépített udvari parkolóhely

Kapcsolat

Látványtervek

A szegedi csoda

A kétszintes ingatlan saroktelken kerül elhelyezésre, így külön utcáról lesz bejárata mindkét lakóépületnek. A 140nm alapterületű ingatlanok privát kertrésszel, valamint a tágas garázs mellett még 1 gépjárműbeálló is kialakításra kerül.  Az ingatlan prémium minőségű, gépesített konyhabútorral kerül átadásra. Lehetőség kiválasztani mind a bútorlapokat, mind a gépeket a burkolatokkal együtt. 

 

Teljes ház
Teljes ház
Teljes ház
Teljes ház
Teljes ház
Belső terek

Igazi luxus

A lakóépületekbe 3-3 db magas minőségű fürdőszoba kerül kialakításra. A földszinti és az egyik emeleti fürdőszobába zuhanyzó, míg a 2. emeleti fürdőszobába szabadonálló kád kerül beépítésre. A fürdőszobák bútorozottan és prémium minőségű szaniterekkel kerülnek átadásra. 

 

Kerámiaház

Ennek a háznak az építéséhez nagyméretű, keramzit betonból készült falelemeket használunk. Ez az építési rendszer leegyszerűsíti a folyamatokat, és akár 50%-kal gyorsabb kivitelezést tesz lehetővé a hagyományos módszerekkel szemben.

A keramzit rendkívül jó építőanyag számos kedvező műszaki tulajdonságának köszönhetően. Könnyű, könnyen szállítható, és jól ellenáll a nedvességnek, savaknak és rothadó folyamatoknak. Fagyálló, nem éghető, tartós és meleg, emellett teljesen ellenáll az élő kártevőknek. Nem nyeli el a nedvességet, és kiváló páraáteresztő képességgel rendelkezik. A legnagyobb rögök esetében a mérések szerint az impregnáltsága 21%, de ez csak a külső bevonatra vonatkozik. A keramzit tökéletesen ellenáll a hő hatásának, és nem bocsát ki semmilyen vegyi anyagot vagy gázt. Az élő kártevők, például rágcsálók és rovarok kifejezetten elkerülik. Továbbá ellenáll a penésznek és a gombáknak is.

Környezettudatos

Környezettudatos

Természetes falazatok, minimális hulladék és tökéletes hőszigetelési mutatók.

Nagyobb élettér

Nagyobb élettér

A hagyományos, kiselemes építési technológiákkal összehasonlítva a teherbíró falak vastagsága csökken, így akár 5-8%-kal nőhet a hasznos alapterület.

Masszív szerkezet

Masszív szerkezet

A falak tömörek, nagy szilárdságúak, jó hőmegtartó képességüknek köszönhetően javul a komfortérzet télen és nyáron egyaránt.

Kapcsolat

Kapcsolat

Vegye fel velünk a kapcsolatot az alábbi elérhetőségek valamelyikén, vagy írjon nekünk a kapcsolati űrlapon keresztül!

Telefon: +36 30 648 6311

E-mail: info@andrasikft.hu